?html>中科催化新技术(大连)股份有限公?0000?年综合分子筛催化剂项目(厂前区一期)规划公布-大连长兴岛经济区
中国大连  
区域概况 | 政务公开 | 政策文件 | 央网信息 | 省政府信?/span> | 网上调查 | 总理记者会
中科催化新技术(大连)股份有限公?0000?年综合分子筛催化剂项目(厂前区一期)规划公布
发布日期?018?6?6?/span>   (点击次数)
打印收藏 关闭  

   编号?018大长规GB?08?

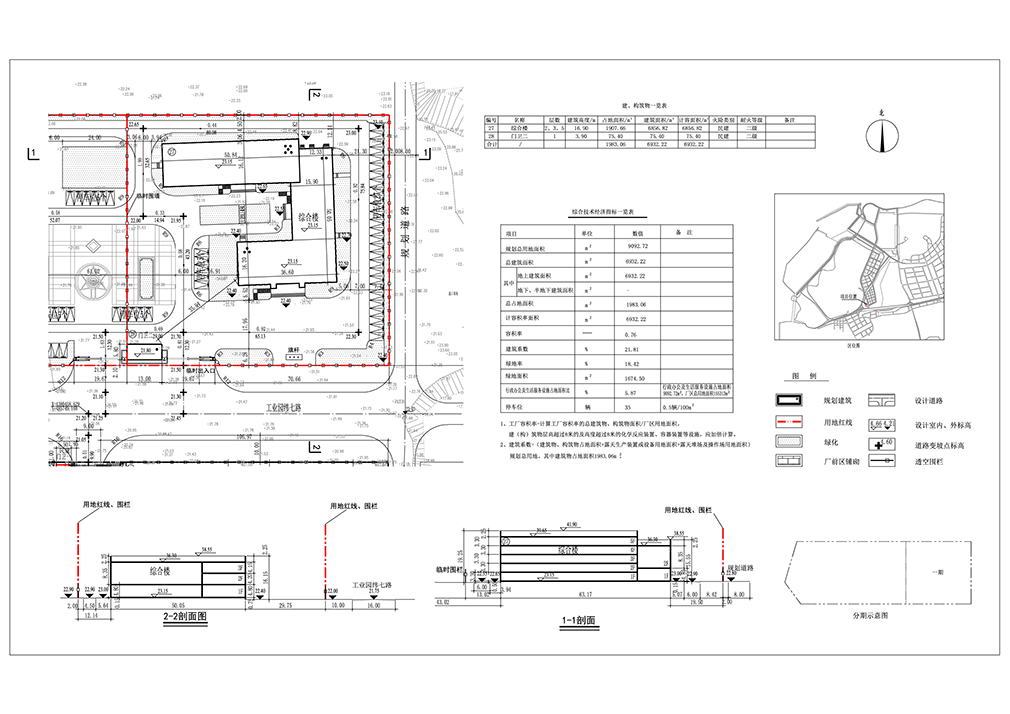
项目名称:中科催化新技术(大连)股份有限公?0000?年综合分子筛催化剂项目(厂前区一期)

设计单位:大连长兴岛长兴规划设计?nbsp; 大连市化工设计院有限公司

建设单位:中科催化新技术(大连)股份有限公?/P>

详规号:详审字[2018]?04?/P>

方案号:方审字[2018]?04?/P>

公告期:      至建设项目规划核实合格之?/P>

联系电话?5283683

                                                                                                       大连长兴岛经济区规划

2018??6?/FONT>

附件?a href="/html/zwgk..infonewscontent......system_contentdownload.jspowner728718381&url2018%2F06%2F26%2Fc311avb1d1.vsb%3A%E5%8E%82%E5%89%8D%E5%8C%BA%E6%80%BB%E5%B9%B3%E9%9D%A2%E5%9B%BE-%E4%BF%AE%E5%BB%BA%E6%80%A7%E8%AF%A6%E7%BB%86%E8%A7%84%E5%88%92%E6%80%BB%E5%B9%B3%E9%9D%A2%E5%9B%BE.jpg.html">厂前区总平面图-修建性详细规划总平面图.jpg?/span>
附件?a href="/html/zwgk..infonewscontent......system_contentdownload.jspowner728718381&url2018%2F06%2F26%2Fjmf6o1bcs1.vsb%3A18008%E9%A3%9E%E7%BF%94%E5%8C%97%E9%83%A8%E5%8E%82%E5%89%8D%E5%8C%BA%E4%B8%80%E6%9C%9F-2.doc.html">18008飞翔北部厂前区一?2.doc?/span>

责任编辑:孙国强    来源:规划局

© 2007辽ICP?2007685 辽公网安?21022002000003?
2007 ©COPY RIGHT 大连长兴岛经济区 版权所?     网站标识码:2102920002
主办单位:大连长兴岛经济区管理委员会    承办单位:大连长兴岛经济区管理委员会办公?
地址:大连长兴岛经济区长兴路600?邮编?16317 电话?5280011