?html>延长中科(大连)能源科技股份有限公司催化剂生产项目(一期)规划公布-大连长兴岛经济区
中国大连  
区域概况 | 政务公开 | 政策文件 | 央网信息 | 省政府信?/span> | 网上调查 | 总理记者会
延长中科(大连)能源科技股份有限公司催化剂生产项目(一期)规划公布
发布日期?018?5?0?/span>   (点击次数)
打印收藏 关闭  

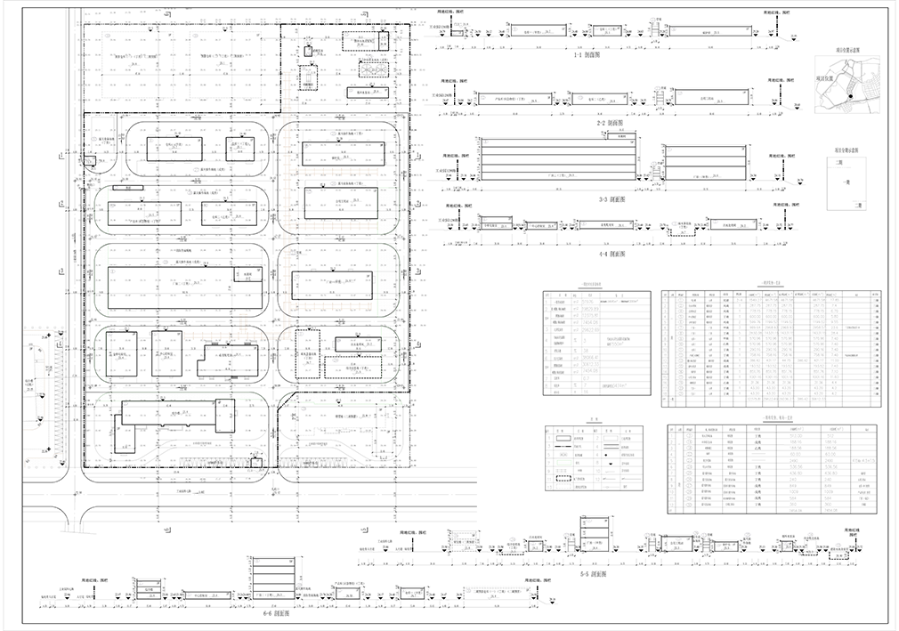
   编号?018大长规GB?07?

项目名称:延长中科(大连)能源科技股份有限公司催化剂生产项目(一期)

设计单位:大连长兴岛长兴规划设计?/P>

建设单位:延长中科(大连)能源科技股份有限公司

详规号:详审字[2018]?05?/P>

方案号:方审字[2018]?05?/P>

公告期:      至建设项目规划核实合格之?/P>

联系电话?5283683

                                                                                                       大连长兴岛经济区规划

2018??0?/FONT>

附件?a href="/html/zwgk..infonewscontent......system_contentdownload.jspowner728718381&url2018%2F05%2F30%2Fo2knhjcpw1.vsb%3A1800%E5%BB%B6%E9%95%BF%E4%B8%AD%E7%A7%91%EF%BC%88%E5%A4%A7%E8%BF%9E%EF%BC%89%E8%83%BD%E6%BA%90%E7%A7%91%E6%8A%80%E8%82%A1%E4%BB%BD%E6%9C%89%E9%99%90%E5%85%AC%E5%8F%B8%E5%82%AC%E5%8C%96%E5%89%82%E7%94%9F%E4%BA%A7%E9%A1%B9%E7%9B%AE%EF%BC%88%E4%B8%80%E6%9C%9F%EF%BC%89.doc.html">1800延长中科(大连)能源科技股份有限公司催化剂生产项目(一期).doc?/span>
附件?a href="/html/zwgk..infonewscontent......system_contentdownload.jspowner728718381&url2018%2F05%2F30%2Ft8y9ehcpw2.vsb%3A%E5%8F%96%E6%95%B4+%E5%BB%B6%E9%95%BF%E4%B8%AD%E7%A7%91%EF%BC%88%E5%A4%A7%E8%BF%9E%EF%BC%89%E8%83%BD%E6%BA%90%E7%A7%91%E6%8A%80%E8%82%A1%E4%BB%BD%E6%9C%89%E9%99%90%E5%85%AC%E5%8F%B8%E5%82%AC%E5%8C%96%E5%89%82%E7%94%9F%E4%BA%A7%E9%A1%B9%E7%9B%AE%EF%BC%88%E4%B8%80%E6%9C%9F%EF%BC%89+%281%29-Model.jpg.html">取整 延长中科(大连)能源科技股份有限公司催化剂生产项目(一期) (1)-Model.jpg?/span>

责任编辑:孙国强    来源:规划局

© 2007辽ICP?2007685 辽公网安?21022002000003?
2007 ©COPY RIGHT 大连长兴岛经济区 版权所?     网站标识码:2102920002
主办单位:大连长兴岛经济区管理委员会    承办单位:大连长兴岛经济区管理委员会办公?
地址:大连长兴岛经济区长兴路600?邮编?16317 电话?5280011