?html>中科催化新技术(大连)股份有限公?0000?年综合分子筛催化剂项目(一期)规划方案公示-大连长兴岛经济区
中国大连  
区域概况 | 政务公开 | 政策文件 | 央网信息 | 省政府信?/span> | 网上调查 | 总理记者会
中科催化新技术(大连)股份有限公?0000?年综合分子筛催化剂项目(一期)规划方案公示
发布日期?017?2?5?/span>   (点击次数)
打印收藏 关闭  

 编编号:2017大长规GB?15?

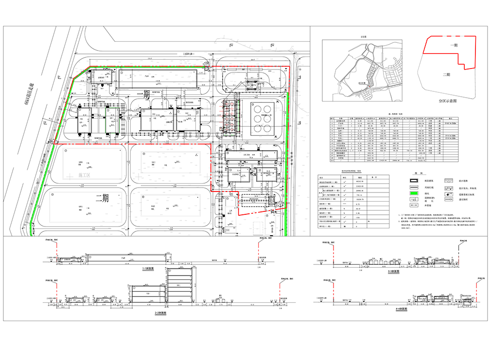
项目名称:中科催化新技术(大连)股份有限公?0000?年综合分子筛催化剂项目(一期)项目

建设单位:中科催化新技术(大连)股份有限公?/P>

设计单位:大连长兴岛长兴规划设计院、大连市化工设计院有限公?/P>

详规号:详审字[2017]?13?/P>

方案号:方审字[2017]?12?/P>

公告期:      至建设项目规划核实合格之?/P>

联系电话?5283683

                                                                                                       大连长兴岛经济区规划

2017?2??/FONT>

附件?a href="/html/zwgk..infonewscontent......system_contentdownload.jspowner728718381&url2017%2F12%2F05%2Fuhkl1gfnf1.vsb%3A17015%E4%B8%AD%E7%A7%91%E5%82%AC%E5%8C%96%E6%96%B0%E6%8A%80%E6%9C%AF%EF%BC%88%E5%A4%A7%E8%BF%9E%EF%BC%89%E8%82%A1%E4%BB%BD%E6%9C%89%E9%99%90%E5%85%AC%E5%8F%B810000%E5%90%A8%E5%B9%B4%E7%BB%BC%E5%90%88%E5%88%86%E5%AD%90%E7%AD%9B%E5%82%AC%E5%8C%96%E5%89%82%E9%A1%B9%E7%9B%AE%EF%BC%88%E4%B8%80%E6%9C%9F%EF%BC%89-2.doc.html">17015中科催化新技术(大连)股份有限公?0000吨年综合分子筛催化剂项目(一期)-2.doc?/span>
附件?a href="/html/zwgk..infonewscontent......system_contentdownload.jspowner728718381&url2017%2F12%2F05%2Fz63eexfnf2.vsb%3A%E6%80%BB%E5%B9%B3%E9%9D%A2%E5%B8%83%E7%BD%AE%E5%9B%BE%E8%A7%84%E5%88%92%E5%9B%BE1113-4%E4%B8%87-Model.jpg.html">总平面布置图规划?113-4?Model.jpg?/span>

责任编辑:王会铭    来源:规划局

© 2007辽ICP?2007685 辽公网安?21022002000003?
2007 ©COPY RIGHT 大连长兴岛经济区 版权所?     网站标识码:2102920002
主办单位:大连长兴岛经济区管理委员会    承办单位:大连长兴岛经济区管理委员会办公?
地址:大连长兴岛经济区长兴路600?邮编?16317 电话?5280011