|
大连长兴岛经济区海洋生态环境监测站项目规划方案公布
|
|
发布日期?018?7?3?/span>
(点击次数)
|
|
|
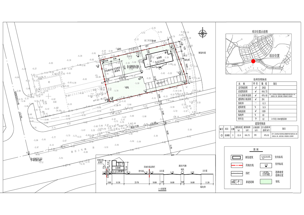
 编号?018大长规GB?12?
项目名称:大连长兴岛经济区海洋生态环境监测站项目
设计单位:瓦房店市规划设计院
建设单位:大连长兴岛经济区社会事业管理局
详规号:详审字[2018]?09?/P>
方案号:方审字[2018]?09?/P>
公告期: 至建设项目规划核实合格之?/P>
联系电话?5283683
大连长兴岛经济区规划局
2018???/FONT>
|
|
|
附件?a href="/html/infonewscontent......system_contentdownload.jspowner728718381&url2018%2F07%2F03%2Fdhg05wukf1.vsb%3A%EF%BC%882018-6%EF%BC%89%E5%A4%A7%E8%BF%9E%E9%95%BF%E5%85%B4%E5%B2%9B%E7%BB%8F%E6%B5%8E%E5%8C%BA%E6%B5%B7%E6%B4%8B%E7%94%9F%E6%80%81%E7%8E%AF%E5%A2%83%E7%9B%91%E6%B5%8B%E7%AB%99-Model.jpg.html">?018-6)大连长兴岛经济区海洋生态环境监测站-Model.jpg?/span>
|
|
|
|
|
责任编辑:韩灵灵 来源:规划局 |